Close
IDP
Home
About Us
Services
Residential Construction
Project Management
Project Feasibility
Land Subdivision
Knockdown and Rebuild
House Renovation
Our projects
Contact us
Call us:
+61 434 114 455
get in touch
Home
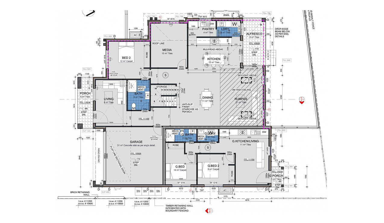
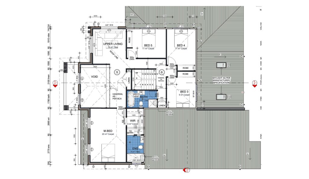
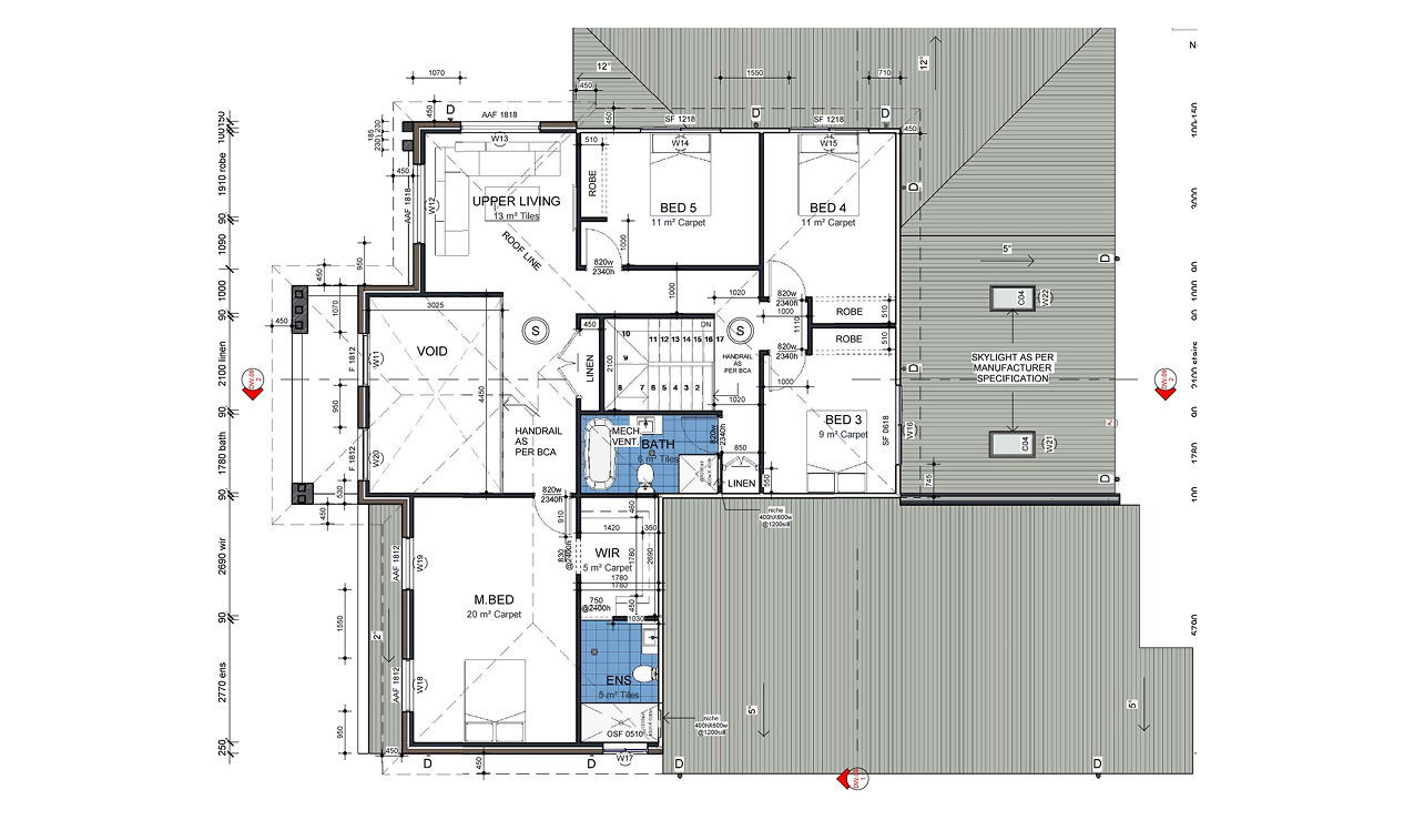
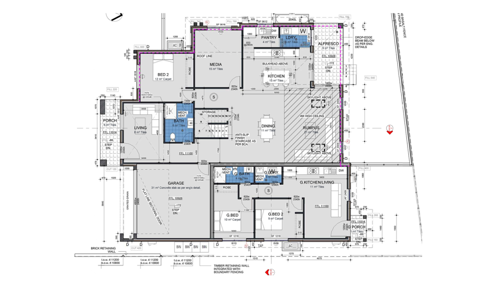
IDP 42 Sq Double storey house with Attached Granny flat
IDP 42 Sq Double storey house with Attached Granny flat
View PDF
Request more information
submit
Post navigation
previous project
next project
Sign in
Create an Account
Username or email
*
Password
*
Login
Lost your password?
IDP
NSW PTY LTD
Home
About Us
Services
Residential Construction
Project Management
Project Feasibility
Land Subdivision
Knockdown and Rebuild
House Renovation
Our projects
Contact us